An Khanh Ward People's Committee (HCMC) is seeking community opinions on the dossier of local adjustment of the 1/2000 scale zoning plan of Sub-zone No. 1 of Thu Thiem New Urban Area, and at the same time adjusting the 1/500 scale Detailed Plan of the Central Political - Administrative - Cultural Area and Central Lake Park.


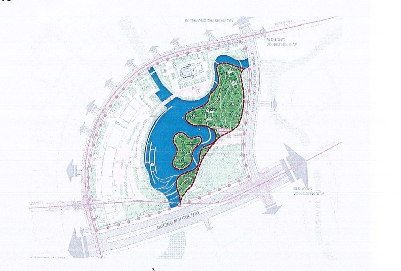
The land for building the political - administrative - cultural center and central lake park of Thu Thiem New Urban Area has a scale of more than 33 hectares (with functions being agency headquarters land, cultural land, green land and water surface), surrounded by major traffic axes including Mai Chi Tho Avenue, To Huu Street and Nguyen Co Thach Street.
Large-scale administrative center, serving 6,000 officials
Along To Huu Avenue, the Administrative Center complex is located on an area of about 7.84 hectares, with a maximum height of 30 floors.
The project is designed in modern architectural language, the building blocks are shaped like sturdy kỷ hà, organized according to a solemn symmetrical axis, facing Thu Thiem Square, creating a solemn and unified image for the city's operating center.


In terms of function, the Administrative Center is planned to meet the regular working needs of about 6,000 officials, civil servants, and public employees.
It is expected that each day, the Center will receive about 1,500 - 2,000 citizens and business representatives through the modern "one-stop shop" system.
Symbolic theater by central lake
Parallel to the administrative area, cultural works are arranged on an area of 3.18 hectares. The Symphony Orchestra - Music - Ballet Theater is moved from the beginning of Ba Son bridge to the adjacent area of the administrative center; the old land area will be converted into a green park and square.

The theater has a maximum height of 12 floors, oriented according to the symbolic architectural language, playing the role of the aesthetic center of the central lakeside landscape axis.
The design idea is inspired by the typical images of indigenous culture such as river dances, the soft curves of traditional ao dai, thereby expressing the liberal and creative spirit of a contemporary cultural and artistic center.
When put into operation, the theater system and community event space are expected to attract about 2,000 - 3,000 visitors per day during performances and festivals.
Central parks and lakes
Ho Chi Minh City Children's Palace in this land area will be swapped locations. The land used to build the Children's Palace will be converted to a park, greenery and public square.
Therefore, the flooded park here is about 10 hectares in scale, organized according to a multi-layered landscape structure, harmoniously combining water surface, flooded vegetation, shade green trees and open spaces serving the community.
The system of lakes, canals and flooded beaches is designed flexibly, adapting to tidal water and heavy rain, both contributing to water regulation and creating dynamic scenery, changing seasonally.

Functional areas in the park are clearly defined but still interconnected, ensuring harmony between the goal of ecological conservation and effective exploitation for entertainment, rest, and landscape experience activities.
Urban design prioritizes soft connections with adjacent functional areas through a network of pedestrian paths, waterside promenades and open landscape squares.


It is forecasted that the park will welcome about 1,000 - 3,000 visitors per day during the week, mainly officials and employees working in the administrative area and surrounding high-rise buildings, Thu Thiem residents and tourists.

The central lake alone, about 12 hectares wide, is shaped by soft curves, simulating the natural flow of the Saigon River.
This organization method aims to reduce the rigidity of administrative building blocks, while creating a spacious water surface space, bearing the characteristic river and water imprint of Ho Chi Minh City.
Regarding capital sources, the Political and Administrative Center and the surrounding green park system will use public investment capital. The Theater - performance and conference center is also invested with budget capital. The pedestrian bridge and some other auxiliary items will be implemented in the form of socialization.
In addition, commercial land plots in Thu Thiem area will be auctioned to create financial resources for the project.